New Construction Home in Phase 1
Lot 12 - New Construction Home Available for Purchase
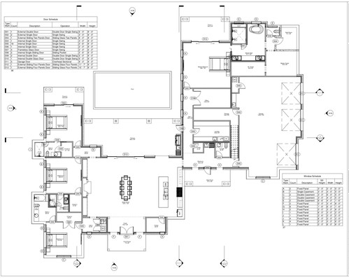
4600 SF / 5 bdrm / 5 bath / 13.1 ac
CALL (737.265.9020) or EMAIL for INFO
This is an exclusive opportunity to purchase a Round Mountain Reserve Signature Home. This home boasts clean lines and thoughtful innovation and is specifically designed for lot 12 in Phase 1. This 4600+ SF five bedroom, and five bath home has a wide open floor plan (40' x 26' Great Room) which flows to a luxurious open patio with breathtaking northern vista views. This unique plan has a dedicated Owners wing with a huge bathroom, his and hers closets, and a private office.
This home also boasts a separate living quarters above the garage with full bath. In addition to multiple entertainment spaces, it also comes with a huge outdoor living area and 5 covered patios including one off the Owners Suite. Lot 12 is a large 13+ acre lot with a private drive, huge vista views, and direct access to miles of improved hiking trails and 50+ acres of nature preserve.
After passing through our gates and a short drive past our nature preserve, lot 12 is a premier lot with several mature oak trees, and breathtaking views. It's a phenomenal lot for those who want privacy and big views but covet the luxury of an elite and gated development. This lot comes with an agricultural tax exemption, underground fiber, underground electric, and underground community propane right to the lot.
This home also boasts a separate living quarters above the garage with full bath. In addition to multiple entertainment spaces, it also comes with a huge outdoor living area and 5 covered patios including one off the Owners Suite. Lot 12 is a large 13+ acre lot with a private drive, huge vista views, and direct access to miles of improved hiking trails and 50+ acres of nature preserve.
After passing through our gates and a short drive past our nature preserve, lot 12 is a premier lot with several mature oak trees, and breathtaking views. It's a phenomenal lot for those who want privacy and big views but covet the luxury of an elite and gated development. This lot comes with an agricultural tax exemption, underground fiber, underground electric, and underground community propane right to the lot.
*Just 45 miles west of Austin, Round Mountain Reserve is set against the scenic backdrop of Blanco County in the Texas Hill Country. This charming area is a celebrated wine region and popular outdoor destination with a number of state parks nearby. With easy access to Austin, Fredericksburg and San Antonio, the community is a short drive from several vibrant cities. The Horseshoe Bay Resort is a stone’s throw away on Lake LBJ and offers a luxurious array of amenities, from golfing and boating to spas and restaurants.


New Construction Home in Phase 2
Lot 37 - New Construction Home
5 bdrm / 5 bath / 6.32 ac / 3424 SF Heated / 5560 SF total Under Roof
List Price: $2,270,000 (Under Contract)




